STEPPED UP
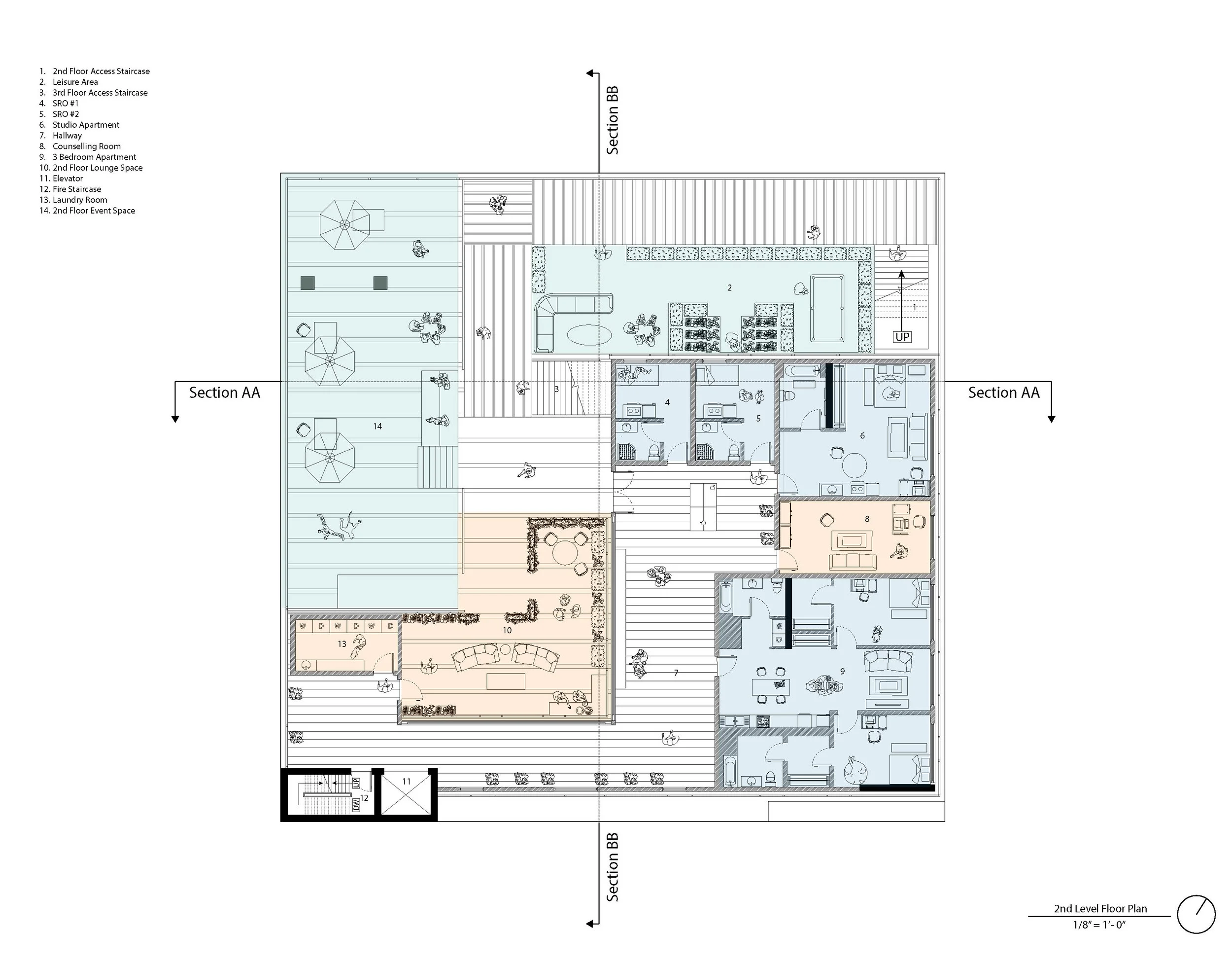
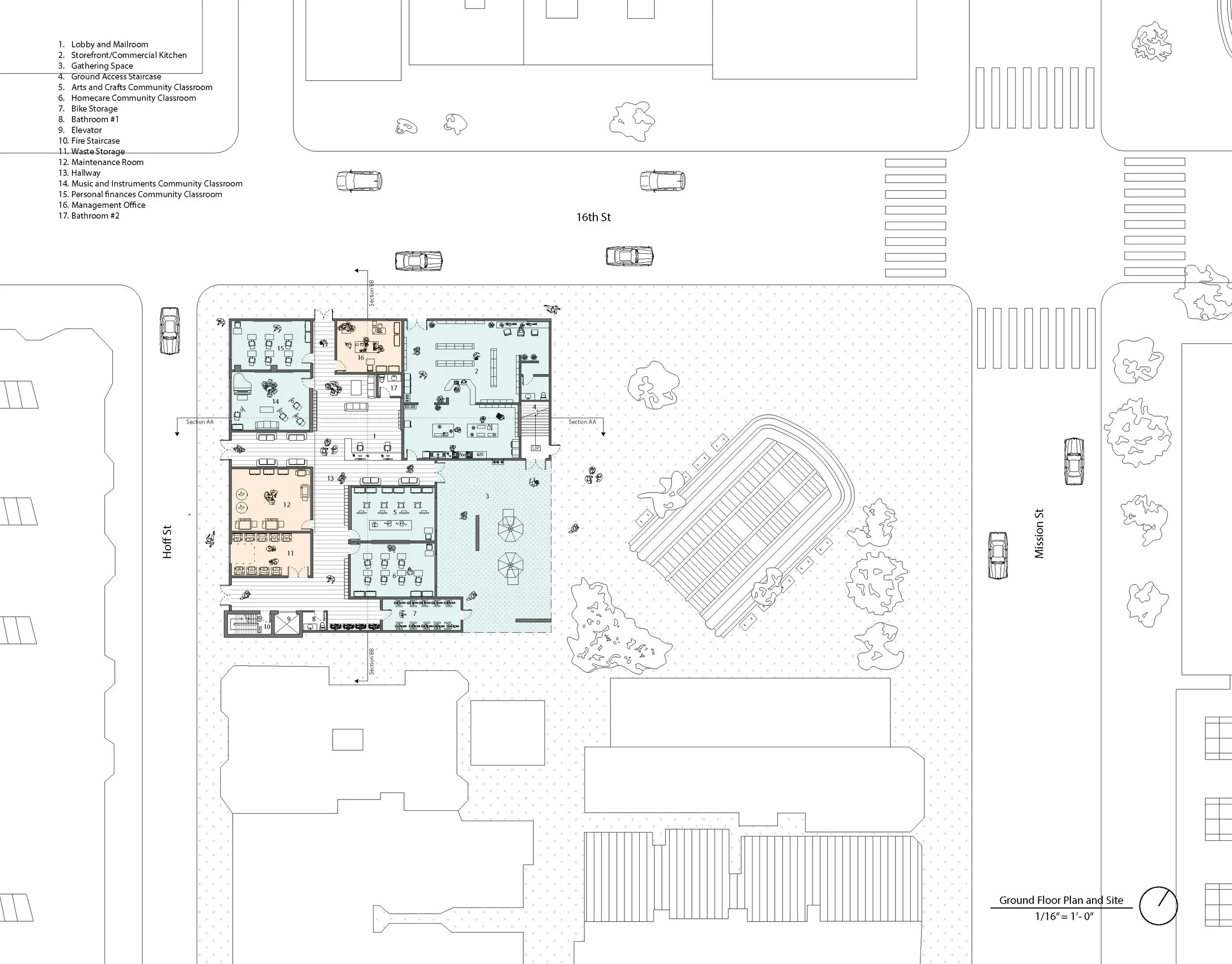
Stepped Up is an affordable housing project that aspires to be a social and residential hub that empowers San Francisco’s Mission District’s strong sense of community. The building’s design reflects this goal by implementing mixed-use spaces with open public gathering areas to expand the Mission District's economic growth and support its residents.
The growing issue of homelessness around San Francisco’s mission district has resulted from a rise in eviction rates, discrimination against immigrants and marginalized groups, and lack of adequate housing programs provided by the city, which has left a dense population of citizens living on the streets. Through effective transitional housing programs and facilities, people struggling with securing housing and jobs can begin to transition back into society through various educational programs. Facilities and community engagement activities available through staggered volumes, sequential circulations, and semi-public areas can effectively start this process.
Course
Studio 4
Project Type
Mixed Use Residential
Level
BArch
Instructor
Mark Donohue, Janette Kim
Time
Spring 2023



![Ground Site Plan_Studio 4_Shriyam Rai [Converted].jpg](https://images.squarespace-cdn.com/content/v1/65b99e847142624a2ac4a2c9/c85fa859-febc-4e79-99f1-7a7a02d20c98/Ground+Site+Plan_Studio+4_Shriyam+Rai+%5BConverted%5D.jpg)
![2nd Floor Plan_Studio 4_Shriyam Rai [Converted].jpg](https://images.squarespace-cdn.com/content/v1/65b99e847142624a2ac4a2c9/7b487a5c-0afb-4f4c-a7fe-8e1d0599e2ee/2nd+Floor+Plan_Studio+4_Shriyam+Rai+%5BConverted%5D.jpg)
![5th Floor Plan_Studio 4_Shriyam Rai [Converted]-01.jpg](https://images.squarespace-cdn.com/content/v1/65b99e847142624a2ac4a2c9/3c8802e7-fc28-4023-a601-cd621adb67d8/5th+Floor+Plan_Studio+4_Shriyam+Rai+%5BConverted%5D-01.jpg)
![NS Section Final_Studio 4_Shriyam Rai [Converted]-01.jpg](https://images.squarespace-cdn.com/content/v1/65b99e847142624a2ac4a2c9/be295ace-aab6-4794-8787-46978a05797f/NS+Section+Final_Studio+4_Shriyam+Rai+%5BConverted%5D-01.jpg)
![EW Section_Studio 4_Shriyam Rai [Converted]-01.jpg](https://images.squarespace-cdn.com/content/v1/65b99e847142624a2ac4a2c9/ba06663b-1345-4b4f-9d7d-0902b759fd43/EW+Section_Studio+4_Shriyam+Rai+%5BConverted%5D-01.jpg)





